Brf. Högfjället. Vecka 6, 32.Lgh.1120. SÄLEN.
Högfjället, Sälen
Brf. Högfjället. Vecka 6, 32.Lgh.1120. SÄLEN
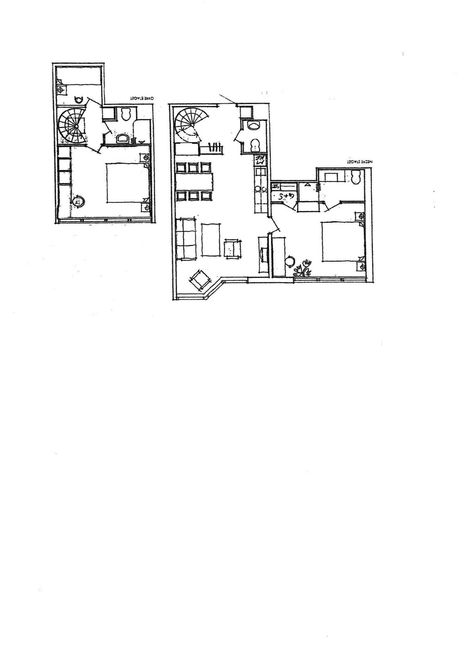
Etagevåning 78 kvm, 6+2 bäddar med burspråk mot Köarskärsfjället. (finns endast två lägenheter av denna typ). I entréplanet: Gästtoalett, stort allrum med burspråk och bäddsoffa, köksavdelning med matplats för 8 pers. Masterbedroom med dubbelsäng, eget badrum, klädkammare. Burspråk. Trappa till öv. Övervåning: Stort sovrum med dubbelsäng, ett mindre sovrum med våningssäng, wc med dusch. Lgh 1120 är färdigrenoverad och i mycket gott skick. Nya ytskikt, nya köksluckor och garderobsdörrar, ny arbetsbänk, nytt kakel i kök, ny matta i sovrum, nya fåtöljer och soffa, nytt torkskåp, köksfläkt, nya gardiner mm. Ta på skidorna vid husknuten. Ski-in/ski-out. Härliga längdspår, 65 olika nerfarter i backar av olika svårhetsgrad, Högfjällshotellets alla nöjen, dans, restauranter spa och bio inom "kavajavstånd" även vid kyla. 78 kvm. i 2 plan. Transportlift över till backarna i Lindvallen om man vill ha lite omväxling till Storfjället. Barnområde på Högfjället På solsidan, nedanför Högfjällshotellet ligger barnområdet med flera knappliftar, rullband och enkla skidbackar. Här ligger också äventyrsområdet Knattesvängen med tunnlar och roliga figurer. Faciliteter i närheten: Samlingsplats för skidskola, toaletter, café, värmestuga, grillplats, SkiStarshop.
Fakta
Utgångspris
Fast.beteckning:
Brf. Högfjället. Vecka 6, 32.Lgh.1120. SÄLEN.
Rum
4 st
Sovrum
3 st
Boarea
78 m²
Reg Fastighetsmäklare
Vägbeskrivning
Hitta till Högfjället SÄLEN SÄLENFJÄLLEN ÄR SVERIGES NÄRMASTE FJÄLLVÄRLD Hit är det lätt och smidigt att ta sig från alla platser. Alla möjliga kommunikationer - bil, buss, tåg och flyg - tar er ända in i receptionen Högfjällshotellet/Brf.Högfjället på bara några timmar från de större städerna i Skandinavien. Nedan hittar ni allt ni behöver veta för att ta er hit på egen hand, men vill ni så arrangerar vi givetvis er resa från dörr till dörr för att ni ska slippa tänka på det. Nyhet - Scandinavian Mountains Airport. Belägen nära norska gränsen, endast 20 km från Högfjällshotellet får du som andelsägare ett nytt snabbt sätt att besöka oss året om. Läs mer om Scandinavian Mountains Airport. Högfjällshotellet/Brf.Högfjället ligger alldeles intill Riksväg 66. Från rondellen i Sälens by är det ca 1,2 mil till hotellet. GPS koordinater Högfjällshotellet Lat: N 61º 9' 23.88" Long: E 13º 7' 0.76" Bil Med bil tar du dig Sälen på ett snabbt och smidigt sätt. Från Stockholm och Mälardalen finns det ett par alternativ att välja mellan. Några reseexempel: " Stockholm 420 km " Göteborg 490 km " Karlstad 240 km " Örebro 320 km " Falun 190 km " Oslo 270 km " Gardermoen 230 km " Mora 100 km Tåg Vill du ta tåget till Sälen är närmaste station Mora. Mellan Mora och Sälen går anslutningsbuss med ca 100 km reseavstånd. www.sj.se Nyhet - Scandinavian Mountains Airport Sälen ny flygplats 2021. Belägen nära norska gränsen, endast 20 km från Högfjällshotellet får du som gäst ett nytt snabbt sätt att besöka oss året om. Läs mer om Scandinavian Mountains Airport. Buss Under vintersäsongen finns direktbussar från Stockholm och Göteborg. Swebus +46(0)771-218218 www.swebuss.se Fjällexpressen +46(0)8-727 90 35, +46(0)31-700 88 02 www.fjallexpressen.se.
Interiör
Etagevåning 78 kvm, 6+2 bäddar med burspråk mot Köarskärsfjället. (finns endast två lägenheter av denna typ). I entréplanet: Gästtoalett, stort allrum med burspråk och bäddsoffa, köksavdelning med matplats för 8 pers. Masterbedroom med dubbelsäng, eget badrum, klädkammare. Burspråk. Trappa till öv. Övervåning: Stort sovrum med dubbelsäng, ett mindre sovrum med våningssäng, wc med dusch. Egen skidförvaring i bottenplanet samt egen p-plats strax utanför. I bottenplanet finns gemensam bastuavdelning, gym och pingisrum. Obs! inomhus access till hotellets alla faciliteter såsom restauranger, pianobar, nattklubb, SPA, lekrum, affärer etc.
Rum
-
Rumsbeskrivning
Fjällvåningen är färdigrenoverat mycket gott skick. Nya ytskikt, nya köksluckor och garderobsdörrar, ny arbetsbänk, nytt kakel i kök, ny matta i sovrum, nya fåtöljer och soffa, nytt torkskåp, köksfläkt, nya gardiner mm. Ski-in och ski-out. Egen parkering. Skidförråd. I de allmänna ytorna i korridoren finns tillgång till sauna, gym, pingis etc. På detta fina hotell finns spa, SF bio, 6 st restauranger, sportshop med skiduthyrning, fjälldagis, ICA, frisör, pianobar och sist men inte minst Vinterträdgården med fjällets bästa afterski. Korridoren bort leder er rakt in i pianobaren. Flygplatsen i Sälen stod klar 2021.
Tomt
Högfjället - klassisk fjällsemester På Högfjället är det aldrig långt till någonting. Liftarna, utförsåkningen, längdåkning ski in/ski out, närhet till restaurangerna, skiduthyrningen, skidskolan och andra aktiviteter finns alltid runt knuten. Breda, sköna backar i högfjällsterräng borgar för en trivsam skidåkning. Småskaligheten och närheten gör Högfjället till ett tryggt område att släppa ut barnen i. Högfjället sitter ihop med Lindvallen genom transportliftar vilket betyder hela 56 nedfarter, 48 liftar och 6 rullband i samma skidområde. 1930-talet. Norsk entreprenör hittade platsen för Högfjällshotellet Den unge, vågade entreprenören J W Klüver hade en dröm: Att bygga ett lyxigt högfjällshotell i Sälen. Han hade studerat snötillgång och temperaturförhållanden i Sverige och valde Sälen för säsongens varaktighet och djupa snötäcke.
Stor härlig balkong mot söder.
Bilplats
Parkering ingår.Energideklaration
Utförd
Ej angivet
Drift per år
Byggnad
Bjälklag
Trä
Fasad
Stående träpanel
Uppvärmning
Bergvärme
Fönster
3-glasfönster
Karta
Planlösning
Lägenhets karta
Lägenhets karta
Pistkarta Högfjället
Bilder
Ett vackert rum med burspråk badar i ljus, bjuder på utsikt och skapar en harmonisk, rymlig känsla
Typisk interiör
Typisk interiör
Typisk interiör, trappa till öv.
Typisk interiör
Typisk interiör
Typisk interiör
Typisk interiör
Typisk interiör
Lgh.11120
Lindalens Fäbod Tandådalen SÄLEN
Fjällkyrkan Högfjället Sälen
Kvällsandakt i Sälens fjällkyrka ger ro och gemenskap – en varm stillhet mitt i fjällens tystnad.
KYRKA CAFÉ. ALLTID ÖPPET
Högfjällshotellet.SÄLEN
Receptionen Högfjället
Pianobaren Högis
Fjällens bästa after ski
Sf-Bio Vinterpalatset
En kvällsmåltid med nya vänner blir fylld av skratt, god mat och värmande gemenskap
EXPERIUM
Gym på Högis
GAMMELGÅRDEN ALLTID ÖPPET.
Nya flygplatsen SÄLEN
Skandinavian Mountain Airport
free Wi Fi
Dalarna
Vasaloppet vecka 9
Kungleden i Sälen
Trollskogen i Sälen är en magisk plats där sagoväsen gömmer sig bland snötäckta träd och stigar.
Gammelgården sommar
Snöglädje sdan 1937
HasseP
Sauna
Egen sauna
Fjällvandring ger frisk luft, starkare kondition och nya krafter – en energikick för både kropp och