Brf.Högfjället. V.13 & 39. Lgh.1213
Högfjället, Sälen
V.13 & 39. Lgh.1213. Brf.Högfjället. SÄLEN
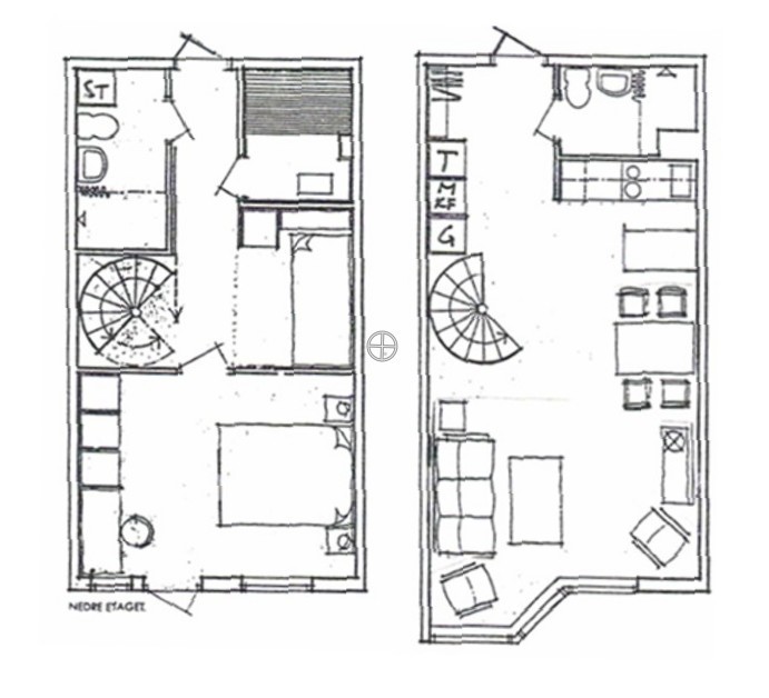
Vecka 13 & 39. Lgh 1213. Brf.Högfjället. SÄLEN. 6 bäddar, 70 kvm Brf.Högfjället, SÄLEN. Ski in/ski out. Fräscht och rymligt med hög standard. På det övre planet finns vardagsrum med bäddsoffa, TV och köksavdelning med matplats. På detta planet finns ett torkskåp i anslutning till hallen samt även dusch och toalett. På entré planet finns det ett sovrum med dubbelsäng och en sovalkov med våningssäng där den nedre är 120 cm bred. På det nedre planet finns även bastu, dusch och toalett. Det finns plats för 6 personer. Lägenheten är renoverad och i mycket gott skick. Nya ytskikt, nya köksluckor och garderobsdörrar, ny köksö, nytt kakel i kök, nya fåtöljer och soffa, nya gardiner. Båda våningsplanen har en entrédörr och strax utanför entrén på det nedre planet finns tillhörande skidförråd. Bredvid skidförrådet finns utrymmen som andelsägarna kan nyttja i form av gym, pingisrum, tvättstuga och en lite större bastu. Ta på skidorna vid husknuten. Ski-in/ski-out. Härliga längdspår, 65 olika nerfarter i backar av olika svårhetsgrad. . Transportlift över till backarna i Lindvallen om man vill ha lite omväxling till Storfjället. På solsidan, nedanför Högfjällshotellet ligger barnområdet med flera knappliftar, rullband och enkla skidbackar, äventyrsområdet Knattesvängen med tunnlar och roliga figurer. Faciliteter i närheten: Samlingsplats för skidskola, toaletter, café, värmestuga, grillplats, SkiStarshop. Högfjällshotellets alla nöjen, dans, restauranter spa och bio inom "kavajavstånd" även vid kyla.
Fakta
Utgångspris
Fast.beteckning:
Brf.Högfjället. V.13 & 39. Lgh.1213. SÄLEN
Rum
3 st
Sovrum
3 st
Boarea
70 m²
Byggnadsår
1980
Reg Fastighetsmäklare
Vägbeskrivning
Hitta till Högfjället SÄLEN SÄLENFJÄLLEN ÄR SVERIGES NÄRMASTE FJÄLLVÄRLD Hit är det lätt och smidigt att ta sig från alla platser. Alla möjliga kommunikationer - bil, buss, tåg och flyg - tar er ända in i receptionen Högfjällshotellet/Brf.Högfjället på bara några timmar från de större städerna i Skandinavien. Nedan hittar ni allt ni behöver veta för att ta er hit på egen hand, men vill ni så arrangerar vi givetvis er resa från dörr till dörr för att ni ska slippa tänka på det. Nyhet - Scandinavian Mountains Airport Belägen nära norska gränsen, endast 20 km från Högfjällshotellet där du som gäst får ett nytt snabbt sätt att besöka oss året om. Läs mer om Scandinavian Mountains Airport. Högfjällshotellet/Brf.Högfjället ligger alldeles intill Riksväg 66. Från rondellen i Sälens by är det ca 1,2 mil till hotellet. GPS koordinater Högfjällshotellet Lat: N 61º 9' 23.88" Long: E 13º 7' 0.76" Bil Med bil tar du dig Sälen på ett snabbt och smidigt sätt. Från Stockholm och Mälardalen finns det ett par alternativ att välja mellan. Några reseexempel: " Stockholm 420 km " Göteborg 490 km " Karlstad 240 km " Örebro 320 km " Falun 190 km " Oslo 270 km " Gardermoen 230 km " Mora 100 km Tåg Vill du ta tåget till Sälen är närmaste station Mora. Mellan Mora och Sälen går anslutningsbuss med ca 100 km reseavstånd. www.sj.se Nyhet - Scandinavian Mountains Airport Sälen får en flygplats 2019. Belägen nära norska gränsen, endast 20 km från Högfjällshotellet får du som gäst ett nytt snabbt sätt att besöka oss året om. Läs mer om Scandinavian Mountains Airport. Buss Under vintersäsongen finns direktbussar från Stockholm och Göteborg. Swebus +46(0)771-218218 www.swebuss.se Fjällexpressen +46(0)8-727 90 35, +46(0)31-700 88 02 www.fjallexpressen.se.
Interiör
Rumsbeskrivning: Övre planet: Hall med torkskåp, garderob Badrum med dusch och toalett Kök med köksö och matplats Vardagsrum med en bäddsoffa (2 sängplatser) Nedre planet: Hall Badrum med dusch och toalett Bastu Sovalkov med en våningssäng där den nedre bädden är 120 cm Sovrum med dubbelsäng Utgång till altanen Ski-in och ski-out. Egen parkering. Skidförråd. I de allmänna ytorna i korridoren finns tillgång till sauna, gym, pingis etc. På detta fina hotell finns spa, SF bio, 6 st restauranger, sportshop med skiduthyrning, fjälldagis, ICA, frisör, pianobar och sist men inte minst Vinterträdgården med fjällets bästa afterski. Korridoren bort leder er rakt in i pianobaren. Internationella Flygplatsen i Sälen.
Rum
-
Rumsbeskrivning
Övre planet: Hall med torkskåp, garderob Badrum med dusch och toalett Kök med köksö och matplats Vardagsrum med en bäddsoffa (2 sängplatser) Nedre planet: Hall Badrum med dusch och toalett Bastu Sovalkov med en våningssäng där den nedre bädden är 120 cm Sovrum med dubbelsäng Utgång till altanen Ski-in och ski-out. Egen parkering. Skidförråd. I de allmänna ytorna i korridoren finns tillgång till sauna, gym, pingis etc. På detta fina hotell finns spa, SF bio, 6 st restauranger, sportshop med skiduthyrning, fjälldagis, ICA, frisör, pianobar och sist men inte minst Vinterträdgården med fjällets bästa afterski. Korridoren bort leder er rakt in i pianobaren. Internationella Flygplatsen i Sälen.
Tomt
Högfjället - klassisk fjällsemester På Högfjället är det aldrig långt till någonting. Liftarna, utförsåkningen, längdåkning ski in/ski out, närhet till restaurangerna, skiduthyrningen, skidskolan och andra aktiviteter finns alltid runt knuten. Breda, sköna backar i högfjällsterräng borgar för en trivsam skidåkning. Småskaligheten och närheten gör Högfjället till ett tryggt område att släppa ut barnen i. Högfjället sitter ihop med Lindvallen genom transportliftar vilket betyder hela 56 nedfarter, 48 liftar och 6 rullband i samma skidområde. 1930-talet. Norsk entreprenör hittade platsen för Högfjällshotellet Den unge, vågade entreprenören J W Klüver hade en dröm: Att bygga ett lyxigt högfjällshotell i Sälen. Han hade studerat snötillgång och temperaturförhållanden i Sverige och valde Sälen för säsongens varaktighet och djupa snötäcke.
Stor härlig balkong mot söder.
Bilplats
Parkeringsplats ingår.Energideklaration
Utförd
Ej angivet
Drift per år
Byggnad
Byggår
1980
Bjälklag
Trä
Fasad
Stående träpanel
Uppvärmning
Bergvärme
Fönster
3-glasfönster
Karta
Planlösning
Högfjället, ligger högt (fjällmiljö, upp till ca 900 m ö.h.), vilket gör att skidsäsongen lång
Lägenhets karta
Lägenhets karta
Pistkarta, Högfjället
Restauranger /Aktiviteter/Butiker
Bilder
Högfjällshotellet – Sälens ikon med fjällkänsla, nöje och skidåkning i världsklass.
Bo mitt i fjällvärlden på Högfjällshotellet – med spa, afterski och pister utanför dörren.
Frisk luft sköna sängar
Utsikt mot knattesvängen huvudbacken ravinåkning högfjället
Mysigt boende
Hållbart boende
Typisk interiör
Typisk interiör
Våning 1 A
Hållbart boende
Typisk interiör
HassG
Typisk interiör
Typisk interiör
Totalt ca 1,5 km upplysta pister i Högfjälle
Alla vägar bär till SÄLEN
Planritning 70 kvm
Restauranger /Aktiviteter/Butiker
Utsikt mot backarna
Knattesvängen – barnens favori
Sälen erbjuder barnområde vid Högfjällshotellet med rullband, knappliftar och roliga figurer.
På solsidan vid Högfjällshotellet i Sälen finns barnområdet med enkla backar och Knattesvängen
Familjära SÄLEN
Här börjar skidäventyret
Att njuta av Sälen på skoter – frihet, glädje och fjällmagi i varje tur.
Tag en slädtur tillHemfjällstugan
Ett stilla äventyr i Sälens snöklädda vildmark
Lindalens fäbod. Ursprung från 1734 – lika gammal som år då Carl von Linné var i Sälen
Trollskogen i Sälen bjuder på sagor, troll och konst i fjällskog – en magisk utflykt för familjen
Alltid öppet året runt – café och kyrka , kanske Sveriges allra finaste fjällkyrka
I Sälen möter du rofylld, lycklig musik som värmer hjärtat och stillar tanken
Sveriges högst belägna kyrka på 710 meter över havet
Sveriges högst belägna kyrka på 710 meter över havet
Sveriges högst belägna fjällkyrka – en plats för ro, gemenskap och inspiration mitt i fjällen
Sälen räknas som ett av Sveriges mest snösäkra skidområden
Restauranger /Aktiviteter/Butiker
Kvällen lyser upp i pianobaren på Högis – musik, värme och gemenskap
När måltiden möter fjället.
Gemenskapen på Högfjällshotellet blir starkast runt kvällens goda måltid
Lammet & Grisen är ett svenskt restaurangkoncept med restauranger bland annat i Sälen/Lindvallen och
Välkommen till Gammelgården i Sälen – tradition, värme och gemenskap alla årets dagar
SF-Bio Vinterpalatset
Välkommen till Gammelgården i Sälen – tradition, värme och gemenskap alla årets daga
EXPERIUM SÄLEN. Lugn i spa, fart i rutschkanorna – allt på Experium
Dags för bad, bio och bowling på samma ställe!
Nya flygplatsen SÄLEN
Sälens nya internationella flygplats gör fjällen mer lättillgängliga än någonsin, med snabba direktf
Från flyg till skidspår på rekordtid
Sälen har fått en modern internationell flygplats som ger snabbare resor direkt till fjällen
Scandinavian Mountains Airport. Terminalen är bekväm och välutrustad: café, butik, shop, transfermöj
SNÖGLÄDJE SEDAN 1937
Free Wi Fi
Frisk luft sköna sängar
Typisk interiör
Med all maskinell utrustning
Hållbart boende
Typisk interiör
Typisk interiör
Dalarnahäst i klassik rött
Gym på Högis
95% relax
Bara bada bastu
Alla bekymmer försvinner strax
En dam njuter av klart fjällvatten och låter blicken vila över Sälenfjällens vida vyer
Sommar - Ridning
Fiske, spänning och skicklighet
Cykelvasan startar här, i hjärtat av fjällen.
Spela golf i storslagen fjällmiljö 18 hål
Folkdräkter i Dalarna
Att spela padel på fjället ger en speciell känsla – kombinationen av sport och fjällmiljö
Spelmän i Sälen låter fiolens toner dansa över fjället – tradition och glädje i samklang
Trollskogen i Sälen bjuder på sagor, troll och konst i fjällskog – en magisk utflykt för familjen
VASALOPPSLEDEN
Kungsleden startar vid Högfjället
Sälen botaniska
Sälen Botaniska
Fjällvandring i Sälen – storslagen natur i varje steg
Bara vara
Mitt i Sälenfjällen – välkommen till Östfjällsstugan
Kungsleden börjar vid Högfjällshotellet
Stensjön i Sälen är en lättillgänglig fjällvandring med fina vyer och stenformationer
Fyra ungdomar i Sälen blickar mot Trysil – frihet, vänskap och äventyr vid horisonten.
Nytt. Skidförråd att hyra – lämna skidorna här och ha dem redo tills du kommer tillbaka nästa år
Orientering på fjället – utmaning och naturupplevelse
Vandra enkelt på högfjället och över myrarna – spången gör fjället tillgängligt för alla
New York Times hyllar Sälen: ”Som en saga”
Pistkarta Lindvallen
Pistkarta Högfjället
Pistkarta Tandådalen
Pistkarta Hundfjället
Trysil. Skistars liftkort gäller även i Trysil, Norges största skidort
Släplift till Högfjället