Brf.Högfjället. V52, 26. Lgh.1131. SÄLEN
Högfjället/SÄLEN, Sälen
Brf.Högfjället. Vecka 52, 26. Lgh. 1131.SÄLEN
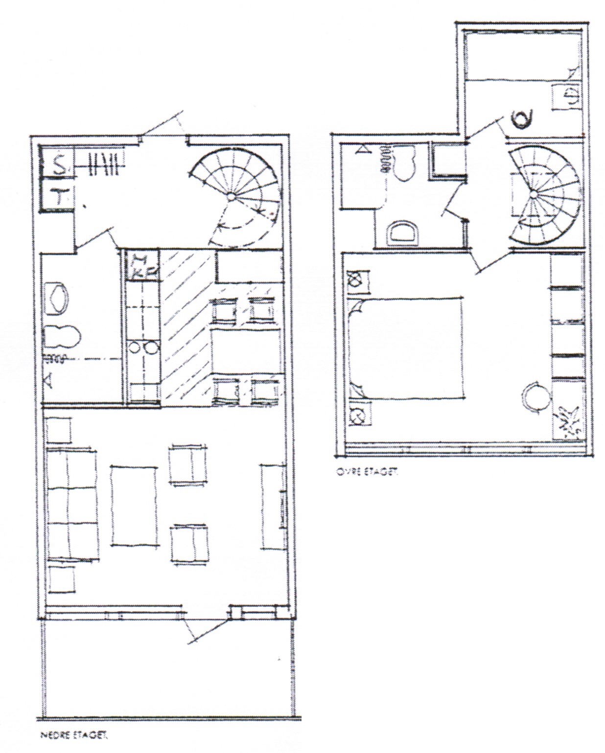
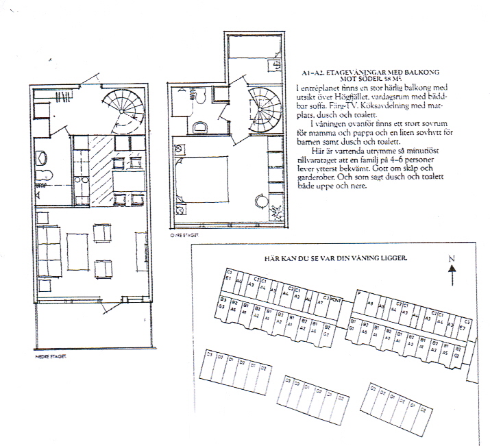
Etagevåning med balkong mot söder 58 kvm, 6 bäddar. I Entréplanet finns en stor härlig balkong med utsikt över Högfjället, vardagsrum med bäddbar soffa. Kabel-TV. Wifi. Köksavdelning med diskmaskin, matplats. Badrum med dusch och toalett. Det finns gott om förvaring och torkskåp. I våningen ovanför finns ett stort sovrum med dubbelsäng och även här utsikt mot backen, ett mindre sovrum med våningssäng samt badrum med dusch och toalett. Föreningen har gemensam sauna, gym, tvättstuga och bordtennisrum. Paddel. Ta på skidorna vid husknuten. Ski-in/ski-out. Härliga längdspår, 65 olika nerfarter i backar av olika svårhetsgrad, Högfjällshotellets alla nöjen, dans, restauranter spa och bio inom "kavajavstånd" även vid kyla. 58 kvm. i 2 plan. Transportlift över till backarna i Lindvallen om man vill ha lite omväxling till Storfjället. Barnområde på Högfjället På solsidan, nedanför Högfjällshotellet ligger barnområdet med flera knappliftar, rullband och enkla skidbackar. Här ligger också äventyrsområdet Knattesvängen med tunnlar och roliga figurer. Faciliteter i närheten: Samlingsplats för skidskola, toaletter, café, värmestuga, grillplats, SkiStarshop. I de allmänna ytorna i korridoren finns tillgång till bastu, gym, pingis etc. På detta fina hotell finns spa, SF bio, 9 restauranger, sportshop med skiduthyrning, fjälldagis, ICA, frisör, pianobar och sist men inte minst Vinterträdgården med fjällets bästa afterski. Korridoren bort leder er rakt in i pianobaren. På sommaren finns vandring längs Södra Kungsleden som börjar vid högfjällshotellet, fiske och även en mängd olika cyklingsaktiviteter. Ta del av fjällvärlden på nära håll på någon av de många vackra vandringsturerna längs fjället. Här börjar till exempel Södra Kungsleden som sedan slingrar sig vidare norrut. Avrunda dagen med en avkopplande spa-behandling på Experium, medan barnen får stå för de mer actionfyllda inslagen i upplevelsebadet. På tal om action, under en semester i Sälen är det inga problem att få en härligt pirrig känsla av adrenalin. Här finns nämligen både höghöjdsbana och bikepark samt många leder för den som vill cykla cross country eller mountainbike.
Budgivning pågår
Högsta bud 100 000 kr
100 000 kr | Budgivare 2 | 2/10 20:41 |
100 000 kr | Budgivare 1 | 2/10 20:40 |
90 000 kr | Budgivare 1 | 2/10 10:44 |
Fakta
Utgångspris
Fast.beteckning:
Brf.Högfjället. V52, 26. Lgh.1131. SÄLEN
Rum
3 st
Boarea
58 m²
Byggnadsår
1979
Reg Fastighetsmäklare
Vägbeskrivning
Hitta till Högfjället SÄLEN SÄLENFJÄLLEN ÄR SVERIGES NÄRMASTE FJÄLLVÄRLD Hit är det lätt och smidigt att ta sig från alla platser. Alla möjliga kommunikationer - bil, buss, tåg och flyg - tar er ända in i receptionen Högfjällshotellet/Brf.Högfjället på bara några timmar från de större städerna i Skandinavien. Nedan hittar ni allt ni behöver veta för att ta er hit på egen hand, men vill ni så arrangerar vi givetvis er resa från dörr till dörr för att ni ska slippa tänka på det. Nyhet - Scandinavian Mountains Airport Sälen har en ny internationell flygplats. Belägen nära norska gränsen, endast 20 km från Högfjällshotellet får du som gäst ett nytt snabbt sätt att besöka oss året om. Läs mer om Scandinavian Mountains Airport. Högfjällshotellet/Brf.Högfjället ligger alldeles intill Riksväg 66. Från rondellen i Sälens by är det ca 1,2 mil till hotellet. GPS koordinater Högfjällshotellet Lat: N 61º 9' 23.88" Long: E 13º 7' 0.76" Bil Med bil tar du dig Sälen på ett snabbt och smidigt sätt. Från Stockholm och Mälardalen finns det ett par alternativ att välja mellan. Några reseexempel: "Stockholm 420 km "Göteborg 490 km "Karlstad 240 km "Örebro 320 km "Falun 190 km "Oslo 270 km "Gardermoen 230 km "Mora 100 km Tåg Vill du ta tåget till Sälen är närmaste station Mora. Mellan Mora och Sälen går anslutningsbuss med ca 100 km reseavstånd. www.sj.se Nyhet - Scandinavian Mountains Airport Sälen nya internationella flygplats. Belägen nära norska gränsen, endast 20 km från Högfjällshotellet får du som gäst ett nytt snabbt sätt att besöka oss året om. Läs mer om Scandinavian Mountains Airport. Buss Under vintersäsongen finns direktbussar från Stockholm och Göteborg. Swebus +46(0)771-218218 www.swebuss.se Fjällexpressen +46(0)8-727 90 35, +46(0)31-700 88 02 www.fjallexpressen.se.
Rum
-
Almän
Etagevåning med balkong mot söder 58 kvm. I Entréplanet finns en stor härlig balkong med utsikt över Högfjället, vardagsrum med bädddbar soffa. TV. Köksavdelning med matplats, dusch och toalett. I våningen ovanför finns ett stort sovrum för mamma och pappa och en liten sovhytt för barnen samt dusch och toalett.. Här är varenda utrymme så minitiöst tillvaratagen att en familj på 4-6 personer lever ytterst bekvämt. Gott om skåp och garderober och som sagt dusch och toalett både uppe och nere. Lägenheten är färdigrenoverat mycket gott skick. Alla har nya ytskikt, nya köksluckor och garderobsdörrar, ny arbetsbänk, nytt kakel i kök, ny matta i sovrum, nya fåtöljer och soffa, nytt torkskåp, köksfläkt, nya gardiner mm. En större översyn av gemensamma lokaler och förråd på Brf Högfjället pågår. Detta för att kunna utnyttja lokalerna maximalt, för bättre brandsäkerhet och effektivisera vaktmästarjobbet på bästa sätt. Det har byggts ett antal nya förråd som alla andelsägare har erbjudits att hyra för 500 kr/år. Förrådens mått är H 225 cm, B 90 cm och D 79 cm. Första omgångens förråd är nu uthyrda och ytterligare förråd kommer att färdigställas.
Tomt
Stor härlig balkong med utsikt över Högfjället. Bostadrättsföreningen. Högfjället har ett unikt läge mitt i Sveriges största skidområde och granne med Sälens Högfjällshotell. Liftar och skidspår börjar direkt vid anläggningen och i hotellets Vinterträdgård pågår nöjeslivet tiiill småtimmarna. Åtta restauranter från enklare till gourmetrestauranten Oncel Jean finns i anslutning till hotellet.
Stor härlig balkong med utsikt mot backen.
Bilplats
Bilplats ingår, numrerad till lägenheten.Tv
Kabel-TV. FreeWifi.
Bredband
FreeWifi.
Energideklaration
Utförd
Utförd
Drift per år
Närområde
Snösäkraste ort i Sverige är Sälen. Snösäkraste ort i Norge är Trysil Sveriges största alpina skidområde är Sälen och Norges största alpina skidområde är Trysil. Området erbjuder drygt 250 pister och ett enormt utbud av restauranger, nöjen, shopping och aktiviteter. Utbudet av upplevelser och antal gäster ökar stadigt även under sommar- och höstperioden. Storfjällsbyn har ett unikt läge mitt i Sveriges största skidområde och granne med Sälens Högfjällshotell. Liftar och skidspår börjar direkt vid anläggningen och i hotellets Vinterträdgård pågår nöjeslivet till småtimmarna. Åtta restauranter från enklare till gourmetrestauranten Oncel Jean finns i anslutning till hotellet.
Byggnad
Byggår
1979
Bjälklag
Trä
Utv plåtarbete
Plåt
Fasad
Stående träpanel
Uppvärmning
Bergvärme 2 hål à 160 meter.
Fönster
3-glasfönster isoler
Renoveringar
Det har byggts ett antal nya förråd som alla andelsägare har erbjudits att hyra för 500 kr/år. Förrådens mått är H 225 cm, B 90 cm och D 79 cm. Första omgångens förråd är nu uthyrda och ytterligare förråd kommer att färdigställas. M.
Karta
Planlösning
Karta
Högfjällelt
Planlösning
Lägenhets karta
Bilder
Fira en vit jul i högfjället!
Bo mitt i backen – kliv rakt ut i skidparadiset på Högfjället.
Frisk luft, sköna sängar
Ljust & fräscht
Lägenheten har praktiska våningssängar med plats för hela familjen
Köket är fullt utrustat med spis kyl frys diskmaskin och mikrovågsugn
Enkelt och praktiskt boende där alla får plats
Lägenheten har en bekväm soffhörna för både vila och umgänge
FIRA JUL TILLSAMMANS MED SOL 6 SNÖ
Sälen när det är som allra vackrast
Högfjället erbjuder ett familjevänligt område med roliga aktiviteter för barn
Lägenheten har ett ljust vardagsrum med matplats och sittgrupp
Somna gott med utsikt över fjället
Entrevåning
Lägenheten är utrustad med tv och gott om förvaringsutrymmen
Lägenheten har gott om förvaring och en smidig spiraltrappa till övervåningen
Sol & snö., lyckliga dagar tillsammans på fjällets vita vägar
Lyckliga äventyrare på väg upp mot nya åk
Utsikt mot huvudbacken
Lägenhet 1131 i Brf Högfjället erbjuder bekväma sovplatser
Terass mot backen
Skidäventyr med familjen – minnen för livet
Alla vägar bär till SÄLEN
Lindvallen
D-vitaminer, tid tillsammans
Äventyrsområdet Knattesvängen med sagotunnlar
Centrum Högfjället
Skidäventyr – minnen för livet
Dala häst i klassisk rött
Gnistrande snö
Snöglädje sedan 1937
Sol och gnistrande snö
Sälen snörikast i Sverige
Skoterleder
Vasaloppet
Julkasse
Snörikast i Sverige
Trollskogen
Glas öl efter en dag i fjällen
Gym
Klockan slår nu är det dags, allabekymmer försvinner strax
Bara bada bastu, bastu, ångan upp och släpp all stress idag
Bara bada bastu
Alla bekymmer försvinner strax
Batubröder det är vi som glöder, 100 grader nå ja
Julotta i Sälens fjällkyrka – ljus, frid och gemenskap
Högfjällshotellet – Sälens ikon med fjällkänsla, nöje och skidåkning i världsklass.
Högfjällshotellet – Sälens ikon med fjällkänsla, tradition, nöje och skidåkning i världsklass
Receptionen juletid, välkomnande känsla
Högfjällshotellet har en inbjudande lobby med reception och sittplatser
Restauranger/Aktiviterer/Butiker
Gammelgarden julbord
Gemenskapen på Högfjällshotellet blir starkast runt kvällens goda måltid
Året Runt. Öppet alla dagar. Välkommen!
Kvällen lyser upp i pianobaren på Högis – musik, värme och gemenskap
Våffelstuga, öppet året runt
Fjällens bäst after ski
SF-bio/Vinterpalatset
Vi ses i Sälen!
Våffelstugan, alltid öppet
LLammet & Grisen är ett svenskt restaurangkoncept med restauranger bland annat i Sälen/Lindvallen oc
Skidförråd
Rofylld plats när det blåser ute
Trollskogen
Landets äldsta fjällkyrka
På Hemfjället, 850 m.ö.h. och fem kilometer ut på skid- och skoterleden hittar du Hemfjällsstug
Lindalens fäbod. Ursprung från 1734 – lika gammal som år då Carl von Linné var i Sälen
Sveriges finast kyrka cafè
Lindalens fäbod. Ursprung från 1734 – lika gammal som år då Carl von Linné var i Sälen
Norrsken i Sälen – naturens egen ljusshow.
Tandådalens fjällkyrka. Året Runt. Öppet alla dagar. Välkommen!
God Jul från Sälen! I Tandådalens fjällkyrka finner du stillhet och ljus, och i caféet – som alltid
Alltid öppet året runt – café och kyrka , kanske Sveriges allra finaste fjällkyrka
Scandinavian Mountains Airport, vid gränsen mellan Sverige och Norge, är porten till fjällvärlden. H
Scandinavian Mountain Airport
Från Scandinavian Mountains Airport är fjället alltid nära – välkommen till Sälen och Trysil!
Fjällen runt hörnet – landa nära Sälen och Trysil
Norrsken i Sälen Högfjället
SNÖGLÄDJE SEDAN 1937
FREE Wi Fi
Entrevåning
Entrevåning
Entrevåning
Entrevåning
Övervåning
Övervåning
Övervåning
Övervåning
Öv. Mysigt boende
Övervåning
Övervåning
Övervåning
Övervåning
Övervåning
Övervåning
Cykla+i+Sälen
Dags för bad, bio och bowling på samma ställe!
EXPERIUM SÄLEN. Lugn i spa, fart i rutschkanorna – allt på Experium
Vasaloppen SÄLEN
Undret är att vandra i fjällen
Undret är att vandra
Kungsleden Högfjället
Bara vara
Fjällkyrka Sälen
Ett glas bubbel efter en dag i fjällen
Midsommar i Dalarna/Sälen
Stormkök Triangia
storsta-arrangor
Foldräkt SÄLEN Dalarna
Troll
Snölykta i SÄLEN
Kyrka och kaffestuga i samma byggnad.. Alltid öppet! Besök!!!!!
Julbord i Sälen
Trollskogen sagoguset
God Jul NEHEM
På Högfjällshotellet möts vi i juletid av glädje, gemenskap och stillhet. I en tid då mörkret ligger
Julen är mer än pynt och paket – den bär hopp, värme och omtanke. Här uppe bland fjällen får både kr
julbord-takeaway
Sälen snö
Högis